Elegant Heritage-Style Marriage Hall – Exterior & Complete Design
A symmetrical, traditional wedding pavilion designed with classical elements, lush landscaping, and a serene ceremonial entrance.

This government marriage hall design reflects a Colonial–Traditional Indian architectural style. It features a symmetrical façade, sloped roof, formal entrance axis, and landscaped forecourt, giving it a dignified, public, and ceremonial character suitable for official use.
PROJECT DETAILS
Project Type:
Location:
Plot Size:
Built-up Area:
Government project
Sukrauli
8500 sq.ft
4500 sq.ft
Project Name:
Design Style:
Status:
Year:
Marriage Hall
Traditional Indian architectural
Completed
2025
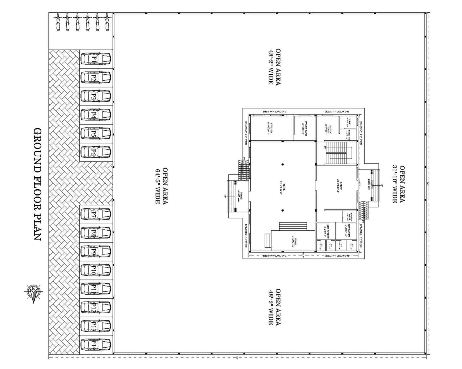
2D Floor Plan
A 2D Plan is the foundational drawing of your building that shows the complete layout from a top view. It includes the arrangement of rooms, walls, doors, windows, circulation spaces, and dimensions. This plan helps you clearly understand how your spaces are organized before construction begins.
EXTERIOR DESIGN GALLERY
Exterior design refers to creating the complete outside appearance of a building, including its shape, style, colours, materials, windows, balconies, lighting, and landscape. Before starting any project, we explain that exterior design decides how the building will look from the outside and ensures that the overall look is attractive, well-planned, and suited to the client’s vision.
Full Project Walkthrough Video
Experience the complete design through a full high-quality walkthrough video showcasing every detail of the exterior, interior, landscape, and overall planning.