Neo-Classical Elevation – Exterior, Interior & Complete Design
A stylish design made with smooth functionality and a Royal look.

This design features a clean classical-modern look with tall gold-detailed pillars, a wide balcony with glass railings, an elegant double-door entrance, and a white and gold color palette. The chandelier, decorative pediment, and surrounding greenery add a premium and luxurious feel to the elevation.
PROJECT DETAILS
Project Type:
Location:
Plot Size:
Built-up Area:
Residential House
kasia
2800 sq.ft
2000 sq.ft
Client:
Design Style:
Status:
Year:
Shoaib Ansari
Neo-Classical
Completed
2025
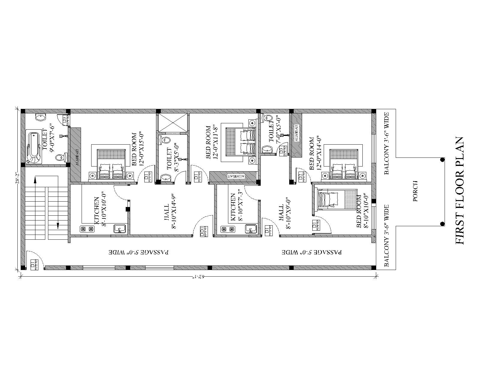
2D Floor Plan
A 2D Plan is the foundational drawing of your building that shows the complete layout from a top view. It includes the arrangement of rooms, walls, doors, windows, circulation spaces, and dimensions. This plan helps you clearly understand how your spaces are organized before construction begins.
EXTERIOR DESIGN GALLERY
Exterior design refers to creating the complete outside appearance of a building, including its shape, style, colours, materials, windows, balconies, lighting, and landscape. Before starting any project, we explain that exterior design decides how the building will look from the outside and ensures that the overall look is attractive, well-planned, and suited to the client’s vision.
INTERIOR DESIGN SHOWCASE
Interior design refers to planning and creating the inside layout of a building, including space arrangement, furniture placement, colours, materials, lighting, and overall aesthetics. Before starting any project, we explain that interior design decides how the spaces inside the home or building will look and feel, ensuring comfort, functionality, and a well-balanced design that matches the client’s lifestyle and vision.
Full Project Walkthrough Video
Experience the complete design through a full high-quality walkthrough video showcasing every detail of the exterior, interior, landscape, and overall planning.