Modern Commercial Design – Exterior, Interior & Complete Design
A clean, stylish elevation blending modern commercial elements with warm residential detailing for a premium and welcoming look.

This design follows a modern contemporary style, featuring clean straight lines, large glass panels, and a balanced mix of textures. The muted color palette, sleek railing, and minimalistic façade create a sophisticated and professional appearance suitable for a clinic or mixed-use building. The landscaped entry, car porch, and structured elevations further enhance its elegant, modern appeal.
PROJECT DETAILS
Project Type:
Location:
Plot Size:
Built-up Area:
Commercial House
kasia
6000 sq.ft
3000 sq.ft
Client:
Design Style:
Status:
Year:
Ritesh Dev
Modern
Completed
2025
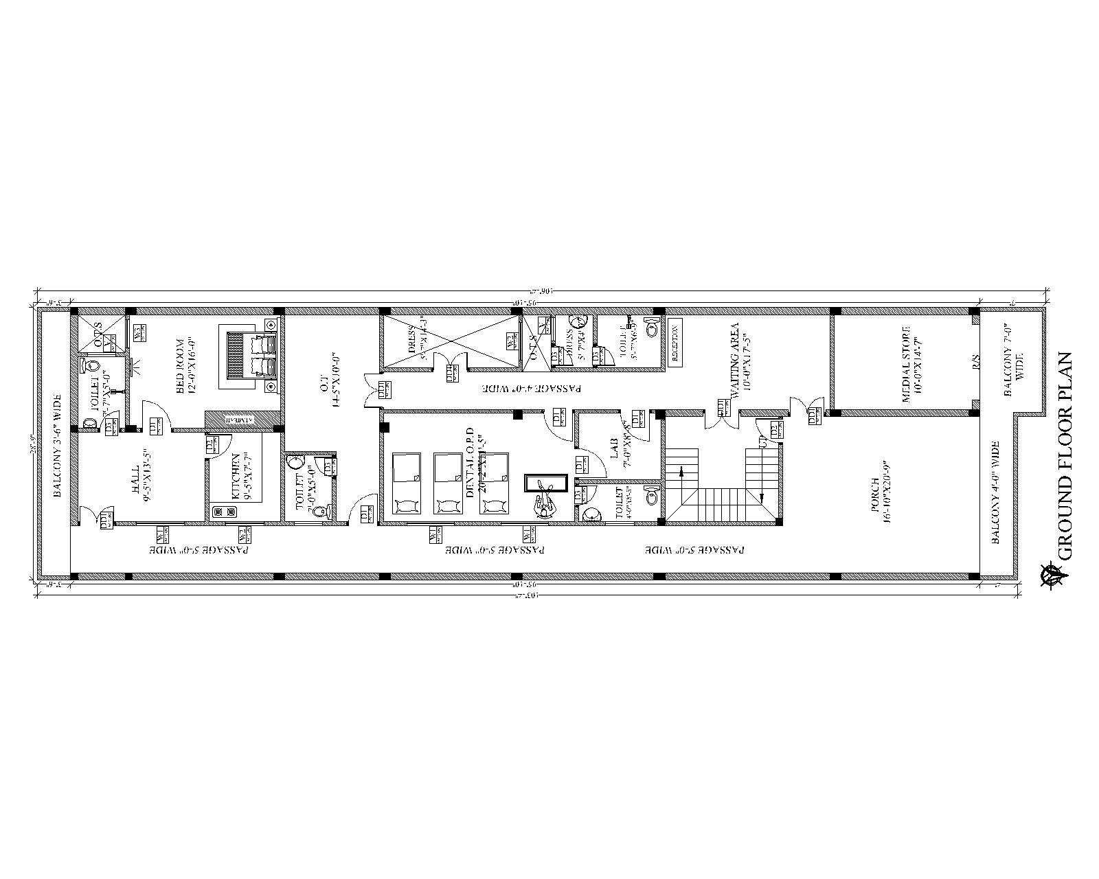
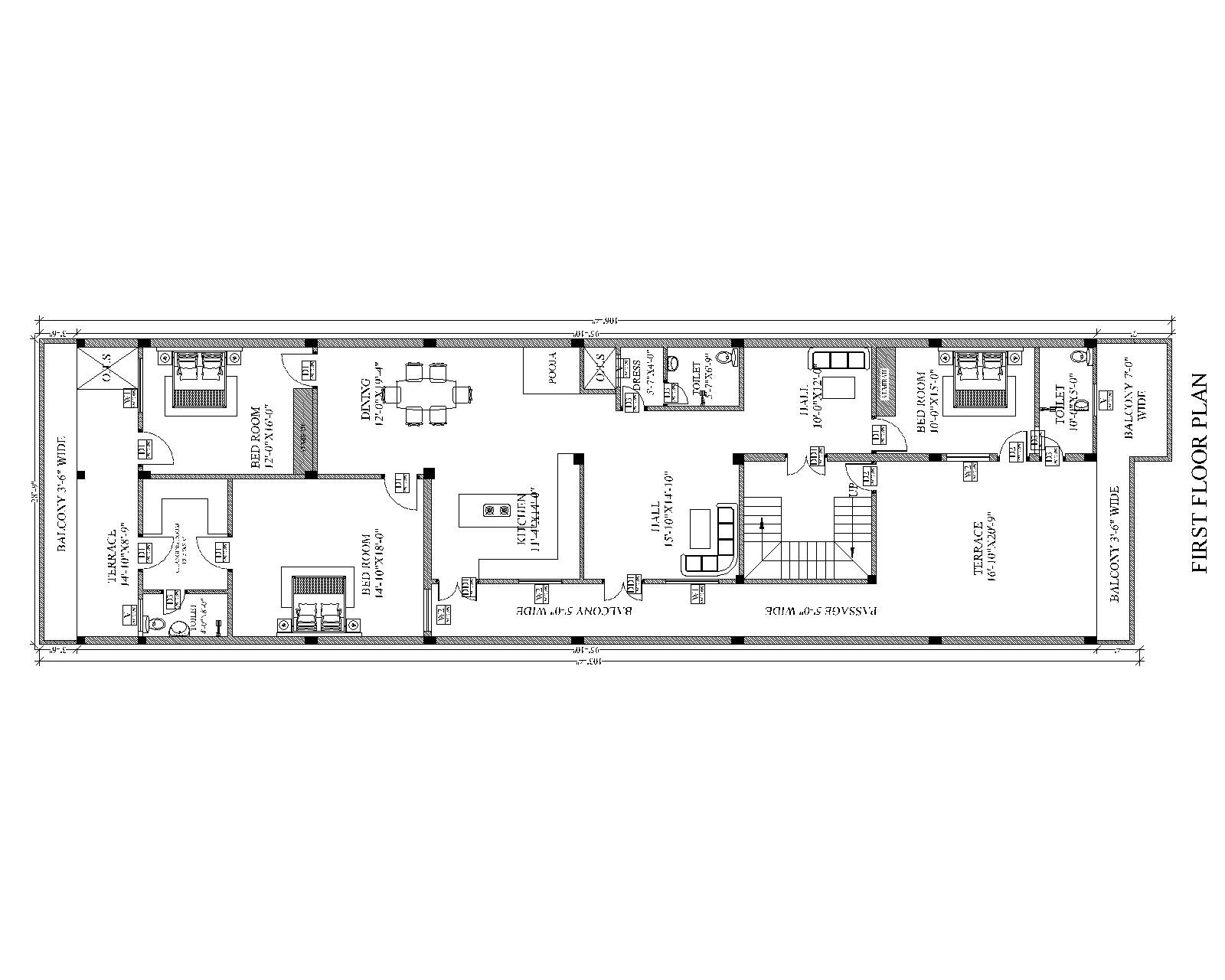
2D Floor Plan
A 2D Plan is the foundational drawing of your building that shows the complete layout from a top view. It includes the arrangement of rooms, walls, doors, windows, circulation spaces, and dimensions. This plan helps you clearly understand how your spaces are organized before construction begins.
EXTERIOR DESIGN GALLERY
Exterior design refers to creating the complete outside appearance of a building, including its shape, style, colours, materials, windows, balconies, lighting, and landscape. Before starting any project, we explain that exterior design decides how the building will look from the outside and ensures that the overall look is attractive, well-planned, and suited to the client’s vision.
INTERIOR DESIGN SHOWCASE
Interior design refers to planning and creating the inside layout of a building, including space arrangement, furniture placement, colours, materials, lighting, and overall aesthetics. Before starting any project, we explain that interior design decides how the spaces inside the home or building will look and feel, ensuring comfort, functionality, and a well-balanced design that matches the client’s lifestyle and vision.
Full Project Walkthrough Video
Experience the complete design through a full high-quality walkthrough video showcasing every detail of the exterior, interior, landscape, and overall planning.